Ihr kapitalstarkes Investment in gefragter Berliner Lage

Objektbeschreibung

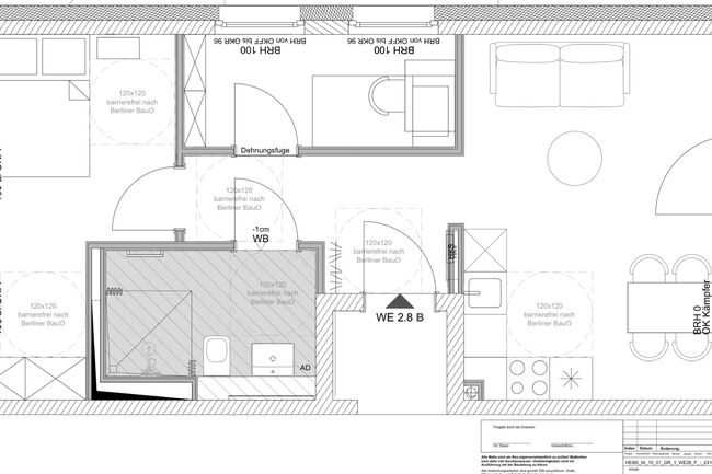
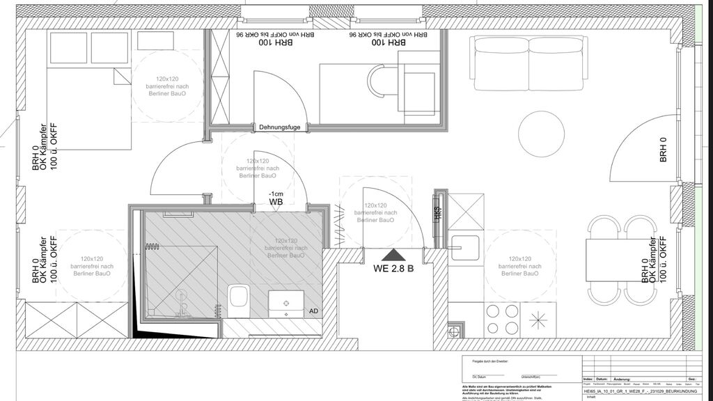
Sichern Sie sich eine der letzten Einheiten dieses soliden Investments, für alle die Wert auf eine nachhaltige Rendite und eine unkomplizierte Vermietung legen. Dieses Microapartment überzeugt durch eine zeitgemäße Ausstattung und ein durchdachtes Raumkonzept auf ca. 50,85 m². Die Lage der Wohnung garantiert eine hohe Nachfrage von Mietinteressenten. Insbesondere Studenten, Auszubildende und Young Professionals werden aufgrund der Nähe zum Siemens Campus gezielt nach modernen und nachhaltigen Wohnungen im angrenzenden Wohnumfeld suchen. Attraktive Mieteinnahmen von anfänglich 15.240 € pro Jahr (1.270 € pro Monat) bieten eine solide Basis für Ihre Kapitalanlage. Nutzen Sie die 5% degressive Abschreibung (Neubau) bei dieser WE i.H.v. ca. 17.370 € und weitere steuerliche Vorteile, um Ihre Rendite zu optimieren. Auf Wunsch übernehmen wir die professionelle Vermietung und Verwaltung Ihrer Immobilie, sodass Sie sich entspannt zurücklehnen können. Finanzielle Eckdaten (Beispielrechnung für das Jahr 2026): Kaufpreis: 406.800 € Mieteinnahmen: 15.240 € pro Jahr Steuerersparnis: 8.199 € Liquidität ohne Tilgung: 6.192 € pro Jahr (516 € pro Monat) Bruttomietrendite i.H.v. 3,75 % Eigenkapitalrendite bei 10 % Diese Wohnung bietet Ihnen die Möglichkeit, von den Vorteilen einer Immobilieninvestition zu profitieren. Nutzen Sie die aktuelle Marktsituation und sichern Sie sich diese attraktive Kapitalanlage. Kontaktieren Sie uns noch heute für weitere Informationen oder einen Besichtigungstermin!

Ausstattung

  • Barrierefreie Zugänge und moderne Ausstattung für eine breite Mieterzielgruppe
  • Durchdachte Grundrisse von ca. 21 m² bis ca. 54 m² mit 1 oder 3 Zimmern
  • Nahezu jede Einheit mit eigenem Balkon oder Terrasse
  • Hochwertiges Eichenparkett
  • Markensanitärobjekte und stilvolle Fliesen im Badezimmer
  • Aufzug über alle Etagen
  • sichere Abstellmöglichkeiten für Fahrräder und Kinderwagen

Sonstiges

  • Das Team von Black Label Immobilien bietet Ihnen Unterstützung in allen Bereichen rund um den Kauf einer Immobilie. Unser internationales Team spricht fließend Englisch, Deutsch, Französisch und Mandarin, zudem arbeiten wir mit einem Team aus mehrsprachigen Anwälten, Notaren und Finanzierungsberatern zusammen. Um Ihren persönlichen Ansprüchen gerecht werden zu können, bieten wir Ihnen eine große Auswahl an verschiedenen Immobilien. Senden Sie uns einfach ihre Suchkriterien inklusive:
  • Art der gesuchten Immobilie
  • Ihr Budget
  • Bevorzugter Standort
  • Suchen Sie eine Immobilie als Investment oder zum Eigenbedarf? Für Unterstützung bei der Finanzierung Ihrer Immobilie vermitteln wir Ihnen gern einen Finanzierungspartner. Sind Sie an einer Vermietung Ihrer neuen Immobilie interessiert? Hierfür bietet Black Label ein Verwaltungs-Paket sowohl für unmöblierte als auch möblierte Vermietungen, sowie einen kompletten Design- und Möblierungsservice, angepasst an ihre persönlichen Vorstellungen. Kontaktieren Sie uns, oder besuchen Sie uns in unserem Büro, um mehr Informationen zu erhalten. Alle Angaben stammen vom Verkäufer. Die Firma BLP Investments GmbH übernimmt daher keine Haftung für die Richtigkeit der Angaben. Insbesondere die Angaben zur Wohnfläche, zur Nutzfläche und zur Aufteilung der Wohn-/Nutzfläche sind von uns nicht durch ein eigenes Aufmaß oder eine eigene Wohnflächenberechnung kontrolliert worden. Die Angaben zum Baujahr sind nicht durch eine Einsicht in die Bauakte überprüft worden.

Lage

Entdecken Sie die HMR Microapartments, elegant positioniert in unmittelbarer Nähe zum innovativen Siemens Campus 2.0. Dieser exklusive Neubau bietet Ihnen die seltene Gelegenheit, das pulsierende Stadtleben Berlins mit der ruhigen Atmosphäre von Charlottenburg-Nord zu verbinden. Genießen Sie die Balance zwischen der dynamischen Berliner Innenstadt, dem charmant-kleinstädtischen Flair von Spandau und der erfrischenden Nähe zur Natur entlang der Havel und der ausgedehnten Forstlandschaft um den Tegeler See. Charlottenburg-Nord entwickelt sich zunehmend zu einem begehrten Wohnort, umgeben von Weltkulturerbe und modernen Entwicklungen wie der Smart City. Hier finden Sie alles, was das urbane Leben bereichert: von einer breiten Auswahl an Einkaufsmöglichkeiten über Bildungseinrichtungen bis hin zu vielfältigen Freizeitangeboten. Die exzellente Verkehrsanbindung ist ein weiteres Plus für Bewohner und Investoren. Nur sieben Gehminuten entfernt befindet sich die U-Bahnstation Halemweg. Von hier aus sind Sie in nur zwei Stationen an der Ringbahn und in wenigen Minuten im Herzen von Charlottenburg. Entdecken Sie die Einkaufsmeilen und kulturellen Highlights der Gegend oder erleben Sie die beschauliche Welt von Spandau mit ihrer lebendigen Altstadt und kulturellen Veranstaltungen in der historischen Zitadelle. Die Anbindung an die Autobahnen A111 und A115 sowie die schnelle Erreichbarkeit des Flughafens BER per Stadtautobahn A100 unterstreichen die strategische Lage der HMR Microapartments. Investieren Sie in HMR Microapartments und sichern Sie sich Ihr Stück Berlin – eine Kapitalanlage, die urbanen Lifestyle mit Naturnähe und exzellenter Infrastruktur verbindet.
Heilmannring 65, 13627 Berlin

Kontaktieren Sie uns

Was ist die Summe aus 4 und 9?

Ihre Daten werden nur zur Beantwortung Ihrer Anfrage genutzt. Wir geben Ihre Daten nicht weiter. Mehr Informationen zum Umgang mit Nutzer-Daten finden Sie in unserer Datenschutzerklärung.